Two-Way Concrete Floor Slab with Beams System Analysis and Design (ACI 318-14)


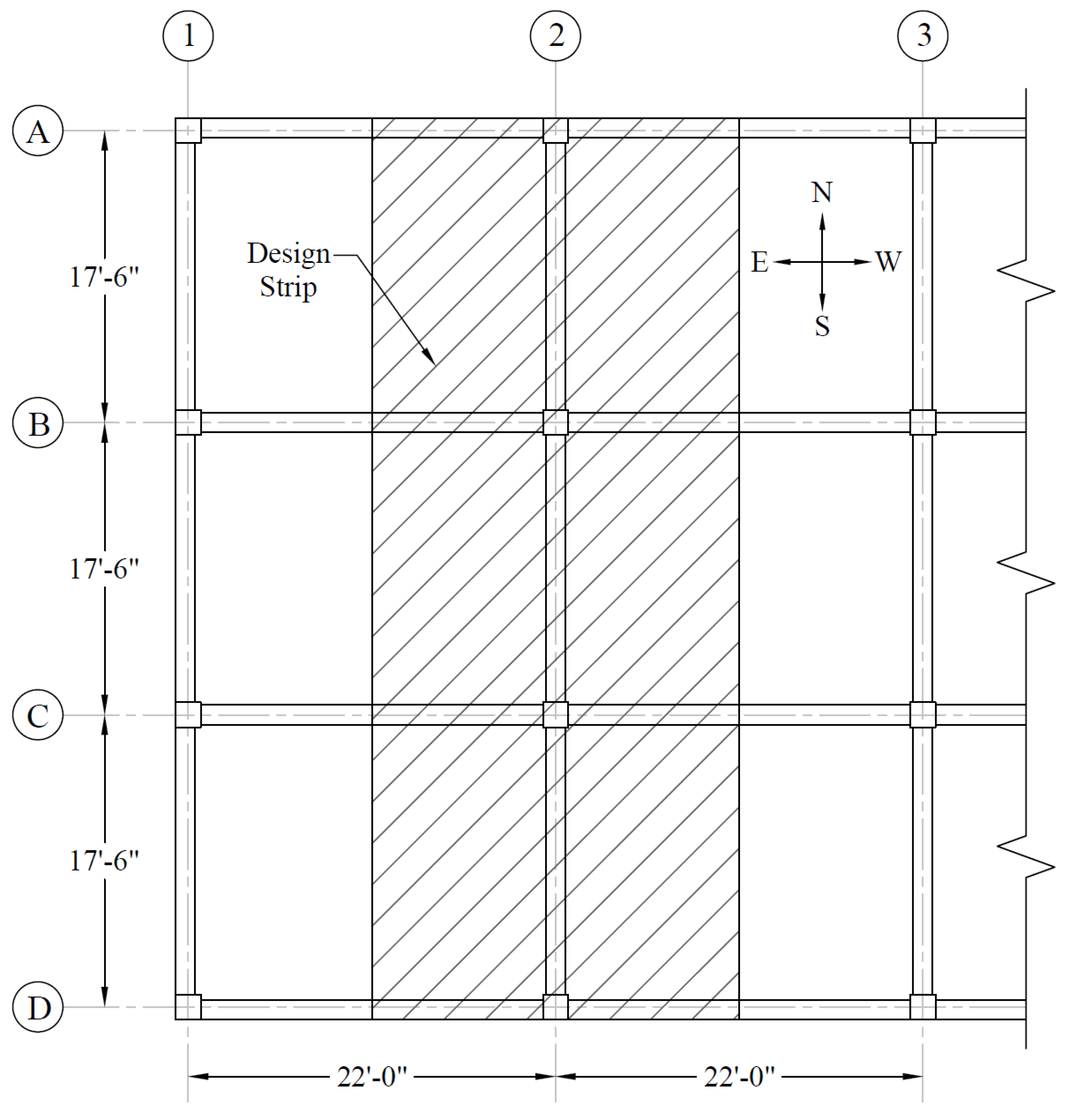
Design the slab system shown below for an intermediate floor where the story height = 12 ft, column cross-sectional dimensions = 18 in. × 18 in., edge beam dimensions = 14 in. × 27 in., interior beam dimensions = 14 in. × 20 in., and unfactored live load = 100 psf. The lateral loads are resisted by shear walls. Normal weight concrete with ultimate strength (fc' = 4000 psi) is used for all members, respectively. And reinforcement with fy = 60,000 psi is used. Use the Equivalent Frame Method (EFM) and compare the results with spSlab engineering software program from StructurePoint.

Figure 1 – Two-Way Slab with Beams Spanning between all Supports